Концепція в кожній деталі
ABB електроустановочні вироби (Electrical Wiring Accessories - EWA)
Вимикачі і розетки серії БС (concept bs)

Схеми підключення
![]() |
![]() |
|
| Схема підключення: 1 група 1-сторонній перемикач |
|
|
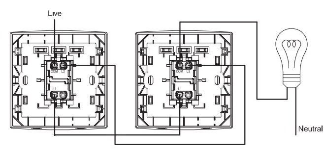
![]() |
![]() |
|
|
Схема підключення: Двополюсний 1-позиційний перемикач | |
![]() |
![]() |
|
| Схема підключення: Вимикач вентилятора | Схема підключення: Розетка BS з 1 гніздом | |
![]() |
![]() |
|
| Схема підключення: Розетка BS з гніздами 2 | Схема підключення: 45A DP перемикач і 13A перемикається розетка з неоном | |
![]() |
![]() |
|
| Схема підключення: Блок з запобіжниками | Схема підключення: Нічний світ | |
![]() |
||
| Схема підключення: Звонковый вимикач з маркуванням та індикатором | ||
![]() |
![]() |
|
| Схема підключення: Перемикач карти | Схема підключення: Розетка для бритви | |
![]() |
![]() |
|
| Схема підключення: Телефонна розетка - RJ11 | Схема підключення: Комп'ютерна розетка - RJ45 | |
![]() |
![]() |
|
| Схема підключення: Телефонна розетка - BT | Схема підключення: Сенсорний вимикач | |
![]() |
![]() |
|
| Схема підключення: Перемикач керування звуком і світлом | Схема підключення: Таймер зворотного відліку, 1 команда 1 спосіб | |
![]() |
||
| Схема підключення: Регулятор гучності | ||
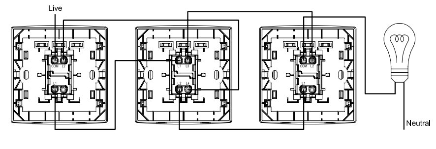
![]() |
![]() |
|
| Схема підключення: 4-х ступінчастий поворотний перемикач | Схема підключення: Контролер вентилятора | |
![]() |
![]() |
|
| Схема підключення: Аварійний вимикач | Схема підключення: Контролер термостата з дисплеєм, 2-х трубна система | |
![]() |
||
|
Схема підключення: Контролер термостата з дисплеєм, 4-х трубна система
|
||

Нагадаємо, що інтернет-портал ELMAR компанії АСТ-Світлотехніка, яка є офіційним партнером таких всесвітньо відомих електротехнічних компаній, як: LAPP KABEL, Philips, Osram-Ledvance, Legrand, ABB, Schneider Electric і ін Купуючи продукцію під цими брендами, АСТ-Світлотехніка гарантує, що покупець захищений від покупки фальсифікату і скориставшись нашими послугами, буде володарем виключно автентичного електротехнічного продукту. Замовити і купити кабель, провід, світлодіодні лампи, у тому числі і світлодіодні філаментні лампи, а також лід-світильники, низьковольтне обладнання та іншу продукцію можна за телефонами: (044)593-9818 або +38 (097) 439-6335
























