Концепция в каждой детали
ABB электроустановочные изделия (Electrical Wiring Accessories - EWA)
Выключатели и розетки серии БС (concept bs)

Схемы подключения
![]() |
![]() |
|
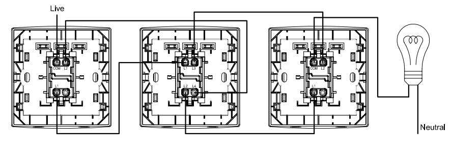
| Схема подключения: 1 группа 1-сторонний переключатель |
|
|
![]() |
![]() |
|
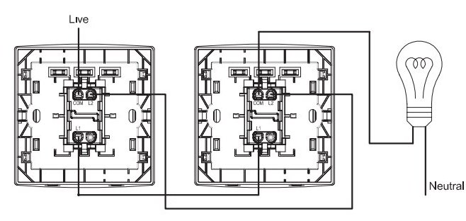
|
Схема подключения: Двухполюсный 1-позиционный переключатель | |
![]() |
![]() |
|
| Схема подключения: Выключатель вентилятора | Схема подключения: Розетка BS с 1 гнездом | |
![]() |
![]() |
|
| Схема подключения: Розетка BS с 2 гнездами | Схема подключения: 45A DP переключатель и 13A переключаемая розетка с неоном | |
![]() |
![]() |
|
| Схема подключения: Блок с предохранителями | Схема подключения: Ночной свет | |
![]() |
||
| Схема подключения: Звонковый выключатель с маркировкой и индикатором | ||
![]() |
![]() |
|
| Схема подключения: Переключатель карты | Схема подключения: Розетка для бритвы | |
![]() |
![]() |
|
| Схема подключения: Телефонная розетка - RJ11 | Схема подключения: Компьютерная розетка - RJ45 | |
![]() |
![]() |
|
| Схема подключения: Телефонная розетка - BT | Схема подключения: Сенсорный выключатель | |
![]() |
![]() |
|
| Схема подключения: Переключатель управления звуком и светом | Схема подключения: Таймер обратного отсчета, 1 команда 1 способ | |
![]() |
||
| Схема подключения: Регулятор громкости | ||
![]() |
![]() |
|
| Схема подключения: 4-х ступенчатый поворотный переключатель | Схема подключения: Контроллер вентилятора | |
![]() |
![]() |
|
| Схема подключения: Аварийный выключатель | Схема подключения: Контроллер термостата с дисплеем, 2-х трубная система | |
![]() |
||
|
Схема подключения: Контроллер термостата с дисплеем, 4-х трубная система
|
||

Напомним, что интернет-портал ELMAR компании АСТ-Светотехника, которая является официальным партнером таких всемирно известных электротехнических компаний, как: LAPP KABEL, Philips, Osram-Ledvance, Legrand, ABB, Schneider Electric и др. Покупая продукцию под этими брендами, АСТ-Светотехника гарантирует, что покупатель защищен от покупки фальсификата и воспользовавшись нашими услугами, будет обладателем исключительно аутентичного электротехнического продукта. Заказать и купить кабель, провод, светодиодные лампы, в том числе и светодиодные филаментные лампы, а также лед-светильники, низковольтное оборудование и другую продукцию можно по телефонам: (044)593-9818 или +38 (097) 439-6335
























